Holiday Apartment Boho Style Open Plan Living
With a brief to create a boho-style space for my client’s open plan living, dining and kitchen, this project was really fun to work on and brought it’s own challenges, as my client is lucky enough to have a holiday apartment in Turkey! Not only did I have a few existing items to work around but I was limited to suppliers who were either based in Turkey or shipped to Turkey. Plus a few items that could fit in a suitcase
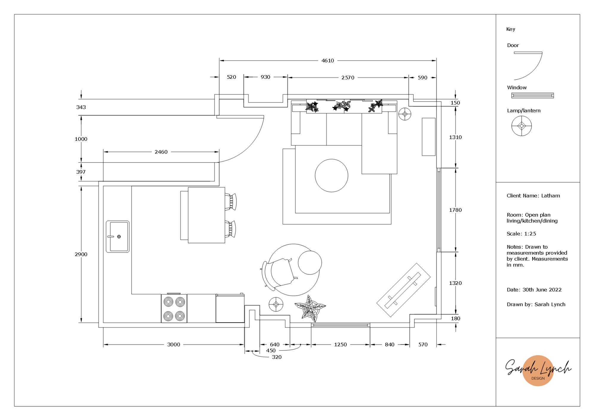
My client asked for the Room Styling package with additional space planning - with a fairly small multi-functional room it’s important to plan and make the best possible use of the space. And when you’re ordering products to a foreign country, you want to give yourself the best possible chance of getting it right first time. Drawing a scaled 2D floor plan allows me to play with placement of furniture, making sure it fits and the space is used as well as it can be.
With a blue-grey chaise sofa and a bold orange rocking chair already in the apartment, along with a round jute rug and a brand new sage green and white kitchen on order, it was a case of bringing all of those items together and mixing with new pieces to create a grown up boho, family-friendly space to relax, cook and eat. All while keeping in mind the logistics of getting each item to the apartment in Turkey.
I’d already seen artwork that I’d personally loved and just knew it would be perfect for this room once I’d seen the brief. Between the Cappadocia art and the distressed rug, the colours of the sofa and chair were already tied nicely together and now it was a case of creating cosiness and that boho vibe with lots of natural textures.
I layered the distressed rug over a larger jute rug to cover more surface area and help ground the space - rugs reaching under at least the front feet of the sofa and chairs is essential to tying the furniture together and avoiding a sense of floating.
I created a little section for the rocking chair with the client’s existing round jute rug and leather pouffe. PLacing the rocking chair closer to the main layered rugs would disrupt the walkway from kitchen to living area, so I had to put it on the other side of the room but wanted it to feel just as inviting and cosy as the main seating area. Adding the rug and pouffe, with the floor lamp and a large plant nearby, did the trick.
While the client didn’t need loads of storage, I think it’s important to consider how a client may grow into a room and anticipate their needs. A tall closed bookcase with a mix of hidden storage and display shelving would be perfect for keeping toys, books and games, while mixing books and baskets in the display section would give a lovely lived-in feel. I always think that having books on display is a great way to show a home owner’s personality, but when the apartment may be empty for periods of time it was important to keep the storage closed to avoid dust settling.
One request from my lovely client was a plant shelf, they were keen to fill the apartment with greenery to add to the boho style and a large run of wall along the back of the sofa was the perfect place to make a statement. I suggested breaking up the plants with artwork and a mirror to bounce the light from the opposite window back around the room and enhance the feeling of space.
And no boho apartment is complete without a statement rattan or bamboo light fitting and soft, sheer curtains hung from a black pole and draped gently on the floor. I balanced the wood and laid back vibe with a more structured and sleek floor lamp which helped to combine the more modern styles of the chair and sofa with the rest of the room. This lamp cleverly comes off the base so it can be used as a table lamp or on the floor, perfect for lighting their balcony or other parts of the apartment as and when it’s needed.
To complete the open plan space, the client said they would love a dining area, either a table or breakfast bar. After drawing out the 2D floor plan it became clear a breakfast bar wouldn’t work and would disrupt the nice open flow of the room. Instead, I made use of a blank wall in the kitchen to position an extendable birch dining table, a nice neat size which could be extended if more people were ever to join them at the table. I chose two contrasting dining chairs and a birch dining bench which could be tucked underneath the table to create more floor space in the kitchen when the table wasn’t in use.
As the kitchen they had ordered (along with a white marble worktop and leather pull handles - nice!) was a mix of white and sage cabinets, I introduced some sage green into accessories and soft furnishings throughout the room to tie it all together.
To complete the Room Styling package, I included a number of pages of visuals and notes to explain to the client how I imaging the styling to work, showing more detail of the products and notes on why they’ve been selected, so they could completely understand and visualise the space themselves. Along with a comprehensive shopping list containing prices (in both Turkish Lira and GBP) and links to all items, to make the whole experience as simple and possible.
I hope they enjoy their new apartment as much as I enjoyed styling it!
My packages start from just £40 (the Support & Advice package) and can help you avoid the stress, time and potentially wasted money that often comes with decorating your home, so if you’d like help with designing or styling a room (or rooms!) in your home, just get in touch and let’s see how I can help!
What the client said…
“Sarah helped me re-style my Turkish apartment as I knew what style I wanted but had no idea where to start.
We had a chat about what I wanted for the space and that was all I had to do, Sarah took care of everything for me and worked really hard to find beautiful pieces that would work logistically (delivering to Turkey) while fitting with our style.
The floor plan was so helpful as it considered where everything would go, which I had been finding really hard to do myself. The room just seems to make more sense now.
I can honestly say it was a pleasure to work with Sarah, she made the whole process so easy and the package she delivered was so user friendly. She's chosen some beautiful items for us.
If you're struggling to pull a space together I would highly recommend contacting Sarah and tailoring a package to your needs.”
